|
Комплексное декорирование.
Комплексное декорирование "под ключ"осуществляется на стадии производства строительно-отделочных работ и включает подбор и полную комплектацию помещения оборудованием и отделочными материалами, мебелью, светильниками, аксесуарами и декоративными предметами интерьера, подбор исполнителей для эксклюзивных работ.
При отсутствии необходимых начальных документов дизайн-проекта стоимости услуги увеличивается на стоимость их разработки.
Стоимость услуги:30% от стоимости дизайн-проекта.
Комплексный дизайн-проект, разработанный нами, включает:
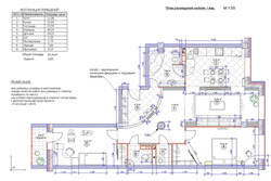
- Планировочное решение:
функциональное зонирование помещений, подробный план всех помещений с расстановкой мебели, оборудования и раскладкой напольных покрытий, пластическое решение потолков и план освещения.
 
- Стилистическое решение:
определение стилистики и создание подробных цветных изображений Вашего будущего интерьера по всем помещениям. Варианты исполнения:графика "от руки" или 3D-визуализация - трёхмерное компьютерное моделирование интерьера. Цель 3D-визуализации - окончательная проверка всех масштабов, объёмов, пространств в каждом помещении интерьера, создание фотореалистического изображения, максимально соответствующего окончательному результату работы над интерьером.
3D-визуализация.

Графика «от руки».
- Техничеcкий проект:
разработки рабочих чертежей для строительства и согласований, спецификации на конструкции и оборудование, ведомость отделочных материалов по всем поверхностям(полы, стены, потолки). Мы подготовим унифицированный комплект рабочей документации, необходимый для воплощения утвержденного Вами дизайн-проекта. Состав пакета чертежей разрабатывается и формируется индивидуально в каждом конкретном случае.
Технический проект:план освещения

|